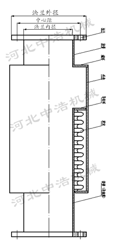
TWY軸向型外壓式波紋補償器主要吸收軸向位移,具有補償量大、保溫性能好、殘余介質可以排除等優點。軸向外壓式波紋補償器是由構成其工作主體的波紋管(一種彈性元件)和端管、支架、法蘭、導管等附件組成。在工作中利用其工作主體波紋管的有效伸縮變形,以吸收管線、導管、容器等由熱脹冷縮等原因而產生的尺寸變化,或補償管線、導管、容器等的軸向、橫向和角向位移。也可用于降噪減振。在現代工業中用途廣泛。
TWY軸向型外壓式波紋補償器是由一個或多個波紋管通過中間接管串接在一起,兩端分別與內封板和封底板焊接后,再分別與通管外管相連、波紋管波數較多。連接方式:分為法蘭連接和焊接兩種。
軸向型外壓式波紋補償器的安裝使用事項:
1、安裝時疏水口向下。
2、現場安裝完后,要拆除拉桿。
3、安裝是介質流向與補償器的流向標志一致。
公司以雄厚的技術力量,先jin的生產設備,種類多規格全,產品質量及良好的企業信譽,使本公司的產品受到廣大客戶的信賴,公司以質量求生存、以科技為依托,以質贏客、以優取勝的精神,堅持真誠奉獻的行為準則,堅持用戶至上,為您提供的TWY軸向型外壓式波紋管補償器。